物件の特徴
-
カウンターキッチン
-
オートロック
-
エレベーター
セールスポイント
江戸川区エリアでの住まいなら、住み心地も快適な「ファミール新小岩」はいかがでしょうか。こちらは南向き物件です。ウォークインクロゼットは洋服だけでなく色んな物が収納できます。価格の面でも、4,390万円と、負担の少ない条件の物件です。新居を構えるなら、こだわりの条件があるはずです。当社は、お客様のご要望にお応えしますので、こだわりやご希望などお気軽にお問い合わせ下さい。
ポイント
エレベーター バルコニー フローリング 全居室フローリング 南向き
担当者のコメント
余裕のある15帖以上のLDKで、日々の生活にゆとりが出ます。価格4,390万円のお住まいはこちらです。全居室収納付きですので、おもちゃがたくさんあるお子様のいる家族に適した住まいです。バルコニーの広さは9.75平米です。江戸川区で住まい探しをするなら、交通の利便性の高い新小岩周辺はいかがでしょうか。こだわりやご要望などございましたら、当社までお気軽にお問い合わせ下さい。
基本情報
- 管理費
- 12,590円
- 修繕積立金
- 25,730円
- 修繕積立基金
- -
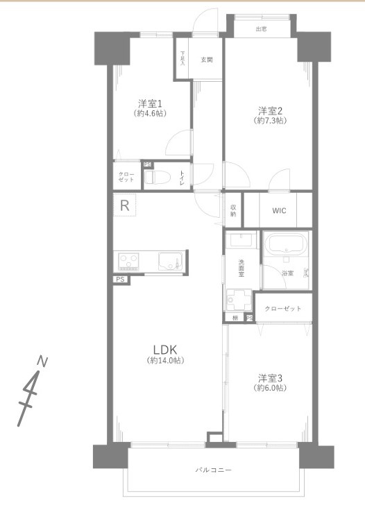
- 間取り / 詳細
- 3LDK
ポーチ面積/4.50㎡
- 向き
- 南
- 専有面積
- 74.13㎡
- バルコニー面積
- 9.75㎡
- その他面積
- -
-
-
- 所在階 / 階建て
- 4階 / 8階建
- 建物構造
- 鉄筋コンクリート
- 築年月
- 1991年8月(築34年)
- 種別
- 中古マンション
- 土地権利
- 所有権
- 土地
(敷金 / 保証金) - - / -
- 国土法届出要否
- -
- 接道状況
- -
- 用途地域
- -
- 地勢
- -
- 都市計画
- -
- 現況
- 空家
- 引渡し
- 即時
- 取引態様
- 仲介
- 棟総戸数
- 53戸
- 管理形態
- 管理会社に全部委託
- 管理会社 /
管理組合有無 - 三菱地所コミュニティ㈱ / -
- リフォーム
-
-
2025年12月
キッチン 浴室 トイレ 壁 床 全室 フルリノベーション
- 取引条件の
有効期限 - 2026年01月19日
設備条件
- 設備条件
-
- 陽当り良好 / リフォーム済 / リノベーション済 / フローリング / バルコニー / エレベーター / 食器洗い乾燥機 / システムキッチン / カウンターキッチン / 温水洗浄便座 / ウォークインクロゼット / オートロック / 角部屋
- 設備(その他)
-
-
-
その他
- 物件番号
- 97841736
- 管理コード
- -
- 建築確認番号
- -
- 情報更新日
- 2026年01月12日
- 次回更新予定日
- 2026年01月19日
- 備考
- 新小岩駅周辺への引っ越しをお考えなら「ファミール新小岩」。こちらの物件は南向きです。デザイン性のあるシステムキッチン付きなので、キッチンがお洒落なスペースになっています。安心のオートロック設備で、女性にもおすすめできる物件です。住まい探しで大切なことは、その住まいがどれだけあなたの生活スタイルに適しているかです。こだわりやご要望などあれば、当社にお任せ下さい。
取扱会社
- 店舗名
- ヴィックスリアルエステート 錦糸町店
- 運営会社
- 所在地
-
〒130-0013
東京都墨田区錦糸3丁目2-1 アルカイースト 2階
- アクセス
-
総武線 錦糸町駅 徒歩1分
半蔵門線 錦糸町駅 徒歩1分
- 電話番号
- 0120-633-805
- メールアドレス
- kinshicho@vixreal.co.jp
- 営業時間
- 10:00~19:00
- 定休日
- 水曜日(1~3月は定休日なし)
支払いシミュレーション
- 月々の支払額
- 9.6円
- 購入希望物件価格
-
万円
- 頭金
-
万円
- 金利
-
%
- 返済額(ボーナス1回分)
-
万円
- 返済期間
-
年
※ボーナスは自動で年2回分で計算されます。
近隣の物件
ファミール新小岩
4,390万円
12,590円
3LDK(74.13㎡)
お気軽にお問い合わせください
ヴィックスリアルエステート 錦糸町店
0120-633-805
10:00~19:00
(休:水曜日(1~3月は定休日なし))



