/
【外観】
- 物件名
- CREAL住吉
- 価格
- 9万円
- 管理/共益費
- 10,000円
- 築年月
- 2021年3月(築4年)
- 総戸数
- 14戸
- 設備条件
-
- 敷地内ごみ置き場
- インターネット対応
- オートロック
- 宅配ボックス
- 設備(その他)
-
-
-
- 駐車場/月額
- -/-
- 用途地域
- -
- 戸数
- 14戸 / -
- 取引態様
- 仲介
- 備考
- ぜひ一度見ていただきたい、「CREAL住吉」です。フジマート 石島店まで173mです。貴重な時間を大切にしたいビジネスマンにおすすめの交通のアクセスが良い物件です。令和3年築の物件です。賃貸物件のことでお悩みの方、当社がその悩みを解消します!当社は多種多様な物件情報を取り扱っているので、きっとご希望の物件が見つかるはずです。
CREAL住吉の基本情報
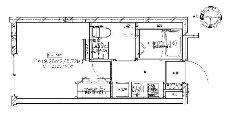
CREAL住吉の詳細情報
CREAL住吉のコメント(おすすめポイント)
こだわりポイント満載のCREAL住吉。セブンイレブン江東扇橋2丁目が359m以内にある物件です。2沿線利用可能なため、電車利用に便利な物件です。駅から徒歩7分の物件で、電車での通勤にも便利な立地です。様々なニーズに合った物件を豊富に取り揃えており、注目の江東区や半蔵門線住吉付近の物件情報も多数取り扱っております。
CREAL住吉で募集中の物件
近隣の物件
CREAL住吉
お気軽にお問い合わせください
ヴィックスリアルエステート 錦糸町店
0120-633-805
10:00~19:00
(休:水曜日(1~3月は定休日なし))



