/
【外観】
- 物件名
- 中央区八丁堀2丁目の店舗事務所
- 価格
- 121.85万円(1.15万円/坪)
- 管理/共益費
- 406,175円
- 築年月
- 1989年3月(築36年)
- 設備条件
-
- 商店街
- エレベーター
- 耐震構造
- 光ファイバー
- 24時間緊急通報システム
- 駐車場/月額
- -/-
- 取引態様
- 仲介
- 備考
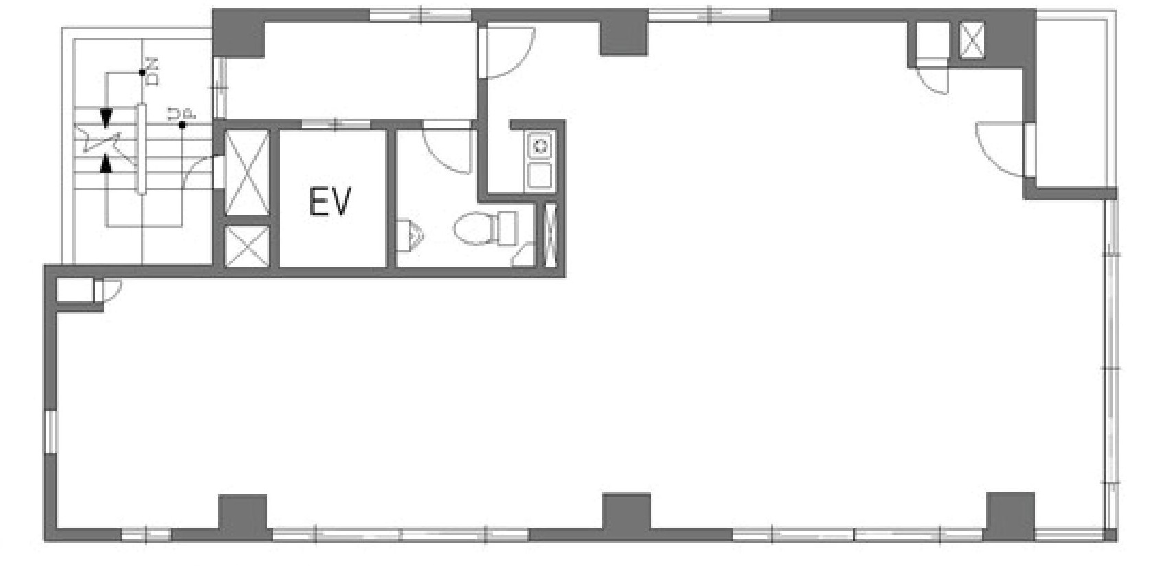
- ぜひ一度見ていただきたい、「八丁堀FRONT」です。周辺には、徒歩2分で利用できる駅があります。2駅利用できる場所にあり、行き先に合わせて使い分けができます。エレベーターが2基あります。
中央区八丁堀2丁目の店舗事務所の基本情報
中央区八丁堀2丁目の店舗事務所の詳細情報
中央区八丁堀2丁目の店舗事務所のコメント(おすすめポイント)
駅まで徒歩2分の立地が魅力的な、利便性の高い物件です。エレベータは二基設置されていますので建物内の移動が快適です。様々な場所へのアクセスがしやすくなる2駅利用可能な物件です。
中央区八丁堀2丁目の店舗事務所で募集中の物件
近隣の物件
中央区八丁堀2丁目の店舗事務所
お気軽にお問い合わせください
ヴィックスリアルエステート 錦糸町店
0120-633-805
10:00~19:00
(休:水曜日(1~3月は定休日なし))



