- 専有面積
- 70.10㎡
- 築年月
- 1996年3月(築29年)
物件の特徴
-
バストイレ別
-
TVモニタ付きインターホン
-
カウンターキッチン
-
浴室乾燥機
-
オートロック
-
エレベーター
セールスポイント
「クレストコート篠崎」:江戸川区エリアの新居にピッタリ。防犯性に優れているオートロック付き物件で新生活を送りませんか。住み心地も充実した、きれいな中古マンションです。来訪者を確認できる、TVインターホン付きです。不動産の購入を検討しているなら、不動産会社をしっかりと選んで下さい。信頼と実績のある不動産会社を選ぶことで、不動産購入を成功させることに繋がります。
ポイント
エレベーター 宅配ボックス バルコニー 2面バルコニー フローリング
担当者のコメント
物件の購入をご予定なら、4,490万円の物件はいかがでしょうか。配置が自由なので使いやすいシステムキッチンの物件です。来訪者を確認できる、TVインターホン付きです。専有面積70.1平米なので、使い勝手がいいです。初めて訪れる街で暮らすのは不安がいっぱいですよね。そんな方は、地域特化型の当社にお問い合わせください。当社は確かな住宅情報をご提供しているので、安心してお任せいただけます。
基本情報
- 管理費
- 18,000円
- 修繕積立金
- 18,150円
- 修繕積立基金
- -
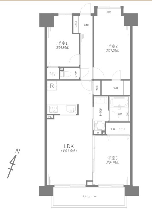
- 間取り / 詳細
- 3LDK
- 向き
- 南西
- 専有面積
- 70.10㎡
- バルコニー面積
- 16.13㎡
- その他面積
- -
-
-
- 所在階 / 階建て
- 3階 / 4階建
- 建物構造
- 鉄筋コンクリート
- 築年月
- 1996年3月(築29年)
- 種別
- 中古マンション
- 駐車場 /
月額料金 - 空無 -
- 土地権利
- 所有権
- 土地
(敷金 / 保証金) - - / -
- 国土法届出要否
- -
- 接道状況
- -
- 用途地域
- 第一種中高層住居専用
- 地勢
- -
- 都市計画
- -
- 現況
- 空家
- 引渡し
- 相談
- 取引態様
- 仲介
- 棟総戸数
- 22戸
- 管理形態
- 管理会社に全部委託
- 管理会社 /
管理組合有無 - エム・エフ・リビングサポート株式会社 / 有
- リフォーム
-
-
2026年2月
キッチン 浴室 トイレ 壁 床 全室 給湯器
- その他条件
- 町会費月:200円
- 取引条件の
有効期限 - 2026年02月23日
設備条件
- 設備条件
-
- 陽当り良好 / リノベーション済 / フローリング / バルコニー / エレベーター / 2面バルコニー / 照明器具付き / 駐輪場 / バイク置場あり / アルコーブ / 外観タイル張り / システムキッチン / カウンターキッチン / バス・トイレ別 / 追焚機能浴室 / 浴室乾燥機 / 温水洗浄便座 / 洗髪洗面化粧台 / ウォークインクロゼット / インターネット対応 / オートロック / TVモニタ付インターホン / 宅配ボックス / 角部屋
- 設備(その他)
-
-
-
その他
- 物件番号
- 100201135
- 管理コード
- -
- 建築確認番号
- -
- 情報更新日
- 2026年02月16日
- 次回更新予定日
- 2026年02月23日
- 備考
- 新生活を失敗せず、スタートさせたいならこちらの「クレストコート篠崎」はいかがでしょうか。住んでいて心地の良い中古マンションで魅力的です。こちらの4,490万円の物件はいかがでしょうか。マンションを中心とした比較的静かな住宅街にある物件です。江戸川区にある篠崎周辺で不動産をお探しの方は、当社にお任せ下さい。住まい探しで失敗しないよう、当社がしっかりとサポートいたします。
取扱会社
- 店舗名
- ヴィックスリアルエステート 錦糸町店
- 運営会社
- 所在地
-
〒130-0013
東京都墨田区錦糸3丁目2-1 アルカイースト 2階
- アクセス
-
総武線 錦糸町駅 徒歩1分
半蔵門線 錦糸町駅 徒歩1分
- 電話番号
- 0120-633-805
- メールアドレス
- kinshicho@vixreal.co.jp
- 営業時間
- 10:00~19:00
- 定休日
- 水曜日(1~3月は定休日なし)
支払いシミュレーション
- 月々の支払額
- 9.6円
- 購入希望物件価格
-
万円
- 頭金
-
万円
- 金利
-
%
- 返済額(ボーナス1回分)
-
万円
- 返済期間
-
年
※ボーナスは自動で年2回分で計算されます。
近隣の物件
クレストコート篠崎
4,490万円
18,000円
3LDK(70.10㎡)
お気軽にお問い合わせください
ヴィックスリアルエステート 錦糸町店
0120-633-805
10:00~19:00
(休:水曜日(1~3月は定休日なし))



