ORIX恵比寿西ビル 4階
102.69万円(30800円/坪)
管理 / 共益費 -
山手線「恵比寿」駅徒歩3分
日比谷線「恵比寿」駅徒歩3分
東急東横線「代官山」駅徒歩6分
/
【外観】
- 賃料 / 坪単価
- 102.69万円 / 30800円
- 敷金(保証金)
- -(12ヶ月)
- 管理 / 共益費
- -
- 礼金
- -
- 建物面積
- 33.34坪(110.22㎡)
- 築年月
- 2009年8月(築16年)
-
エレベーター
- 保証金
- 12ヶ月
- 敷引 / 償却
- - / -
- その他初期費用
- 合計55万円 ( 内訳:内装管理費55万円 )
- 建物面積
- 110.22㎡
- 接道状況
- 角地
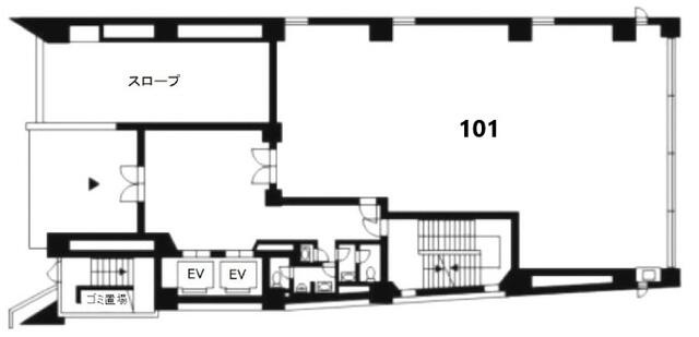
- 所在階 / 階建て
- 4階 / 6階建 地下1階
- 建物構造
- 鉄骨造
- 築年月
- 2009年8月(築16年)
- 種別
- 店舗事務所
- 契約期間
- 定期借家 2年
- 保証会社 / 料金
- - / -
- 駐車場
- 無 -
- 現況
- 賃貸中
- 入居可能時期
- 2025年08月上旬予定
- その他条件
- 内装管理費:55万円 ・定借期間相談可能 ・内装管理費55万円 ・保証会社加入の場合有 ・美容室、飲食不可 ・エントランス開閉時間 8時~21時
- 取引条件の
有効期限 - 2026年03月16日
- 設備条件
-
- OAフロア / スクール向け / 公営水道 / 公共下水 / エレベーター / 電気有 / 個別空調 / 耐震構造 / 男女トイレ別 / エアコン / 光ファイバー / 24時間緊急通報システム / エアコン2台
- 賃貸区分
- 定期借家権
- 更新料
- 0万円
- 保険会社 / 料金
- 有 / -
- 取引態様
- 仲介
- 物件番号
- 99356460
- 情報更新日
- 2026年03月09日
- 次回更新予定日
- 2026年03月16日
- 備考
- 「ORIX恵比寿西ビル」:渋谷区エリアの新居にピッタリ。広々とした室内となっておりますのでスクール向けです。敷金不要なので、初期費用削減につながります。お使いいただける駅は2駅あり、行き先に応じて使い分けができます。広々とした室内となっておりますのでスクール向けです。敷金礼金不要なので初期費用をグッと抑えることができます。敷金不要なので初期費用を抑えたい方におすすめです。
- 店舗名
- ヴィックスリアルエステート 錦糸町店
- 運営会社
- 所在地
-
〒130-0013
東京都墨田区錦糸3丁目2-1 アルカイースト 2階 - アクセス
-
総武線 錦糸町駅 徒歩1分
半蔵門線 錦糸町駅 徒歩1分 - 電話番号
- 0120-633-805
- メールアドレス
- kinshicho@vixreal.co.jp
- 営業時間
- 10:00~19:00
- 定休日
- 水曜日(1~3月は定休日なし)
物件の特徴
セールスポイント
新着情報:ORIX恵比寿西ビルの空室情報ならコチラ。敷金も不要ですので、住み替えには非常に魅力的。必要なものは決断だけ。毎月102.6872万円で至高の生活を手に入れましょう。駅が周辺に2つあるので行動範囲が広がります。敷金不要なので初期費用を抑えたい方におすすめです。賃貸契約の際の初期費用としてかかるはずの敷金・礼金が不要です。広々とした室内となっておりますのでスクール向けです。
ポイント
天井高2.7m以上 礼金不要 冷房 3駅以上利用可 エレベータ
担当者のコメント
賃料は102.6872万円です。敷金も不要ですので、住み替えには非常に魅力的。急病になってしまったときにも備えられる、24時間緊急通報システムつきです。周辺には、徒歩3分で利用できる駅があります。敷金不要なので、初期費用削減につながります。広々とした室内となっておりますのでスクール向けです。賃貸契約の際の初期費用としてかかるはずの敷金・礼金が不要です。
基本情報
設備条件
その他
取扱会社
近隣の物件
ORIX恵比寿西ビル
102.69万円
-
33.34坪(110.22㎡)
お気軽にお問い合わせください
ヴィックスリアルエステート 錦糸町店
0120-633-805
10:00~19:00
(休:水曜日(1~3月は定休日なし))



