物件の特徴
-
バストイレ別
-
室内洗濯機置場
-
独立洗面台
-
浴室乾燥機
-
オートロック
-
エレベーター
セールスポイント
室内設備は浴室乾燥機・洗面所独立などが揃っているので、快適に過ごしやすいお部屋になります。知らない人が玄関前まで来ることが減るので防犯対策につながるオートロック機能を備えております。共用部にはゴミ出し24時間OK・宅配ボックスなど様々な設備やサービスが揃っているので便利です。賃貸住宅情報をお探しの方で、お困りでしたら当社にご連絡下さい。お客様がご希望することや不明な点についてお伺いいたします。
ポイント
バルコニー エレベーター ゴミ出し24時間OK バイク置場 システムキッチン
担当者のコメント
室内設備は浴室乾燥機・洗面所独立など大変充実しております。エントランスのオートロックと玄関の鍵で二重にロックできるので防犯対策もばっちりです。共用部にはゴミ出し24時間OK・宅配ボックスなどが揃っております。楽器が使える楽しいお住まい、楽器の相談にも応じます。こちらは1Kの物件です。地上13階建ての物件。管理人が巡回する物件です。江東区や辰巳付近での楽しい暮らしがあなたを待っています。素敵なお部屋を私達と一緒に見つけるために、まずはお問い合わせください。
基本情報
- 保証金
- -
- 敷引 / 償却
- - / -
- 敷金積み増し
- -
- その他初期費用
- 合計7.15万円 ( 内訳:室内清掃費5.5万円 鍵交換費1.65万円 )
- その他月額費用
- 合計0.011万円 ( 内訳:口座振替事務手数料0.011万円 )
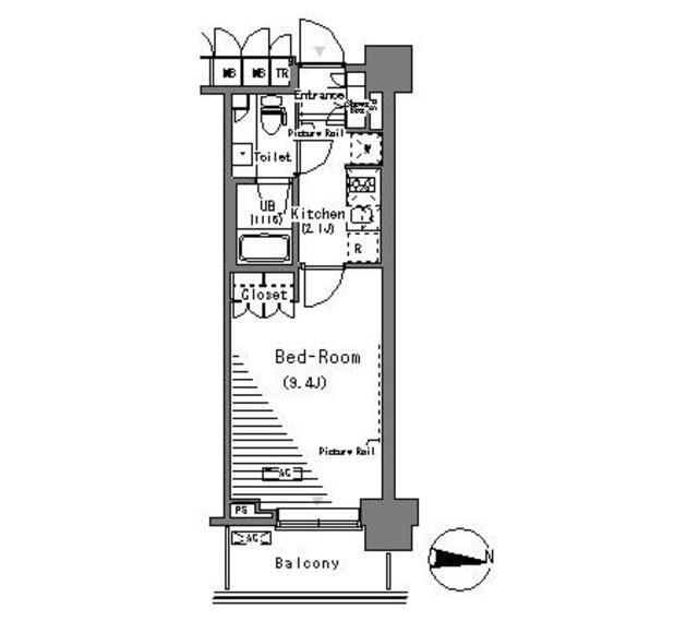
- 間取り / 詳細
- 1K
- 向き
- 東
- 専有面積
- 28.48㎡
- バルコニー
(テラス)面積 - 4.00㎡
- 所在階 / 階建て
- 2階 / 13階建
- 建物構造
- 鉄筋コンクリート
- 築年月
- 2008年1月(築18年)
- 種別
- 賃貸マンション
- 保険会社 / 料金
- 有 / -
- 保証会社 / 料金
- 必加入 / その他
初回保証委託料(最低20,000円):月額賃料等の50%、 2年目以降:9,600円/年
- 駐車場
- 無 -
- 現況
- 空家
- 入居可能時期
- 2026年01月24日
- その他条件
- 室内清掃費:5万5,000円 鍵交換費:1万6,500円 口座振替事務手数料:110円(月額)
設備条件
- 設備条件
-
- ペット相談 / 楽器相談 / 室内洗濯機置場 / フローリング / バルコニー / エレベーター / 電気有 / バイク置場あり / 敷地内ごみ置き場 / 耐震構造 / システムキッチン / バス・トイレ別 / 浴室乾燥機 / 独立洗面台 / エアコン / CS / BS / インターネット対応 / オートロック / 宅配ボックス / 24時間ゴミ出し可
その他
- 契約期間
- 2年
- 賃貸区分
- 一般
- 更新料
- 1ヶ月
- 更新事務手数料
- -
- 総戸数
- -
- 特優賃
- -
- 取引態様
- 仲介
- 物件番号
- 100468234
- 管理コード
- -
- 情報更新日
- 2026年01月12日
- 次回更新予定日
- 2026年01月19日
- 備考
- 共用部にはゴミ出し24時間OK・宅配ボックスなど様々な設備やサービスが揃っているので便利です。室内設備は浴室乾燥機・洗面所独立など充実した設備を備え付けています。安心できる生活には、オートロック付きの物件がおすすめです。江東区エリアや辰巳付近までのお引っ越しをご検討されているなら、お問い合わせやご連絡をお待ちしております。知識が豊富なスタッフがご対応させて頂きます。
取扱会社
- 店舗名
- ヴィックスリアルエステート 亀戸店
- 運営会社
- 所在地
-
〒136-0071
東京都江東区亀戸6丁目28-5 ストラーダ・ディ・ソーレ1階
- アクセス
-
総武線 亀戸駅 1分
都営新宿線 西大島駅 12分
総武線 錦糸町駅 16分
- 電話番号
- 0120-633-085
- メールアドレス
- kameido@vixreal.co.jp
- 営業時間
- 10:00~19:00
- 定休日
- 水曜日(1月~3月は定休日なし)
パークアクシス辰巳ステージの他の部屋
近隣の物件
パークアクシス辰巳ステージ
12.2万円
8,000円
1K(28.48㎡)
お気軽にお問い合わせください
ヴィックスリアルエステート 亀戸店
0120-633-085
10:00~19:00
(休:水曜日(1月~3月は定休日なし))



