- 専有面積
- 70.37㎡
- 築年月
- 1989年9月(築36年)
物件の特徴
-
バストイレ別
-
TVモニタ付きインターホン
-
カウンターキッチン
-
浴室乾燥機
-
オートロック
-
エレベーター
セールスポイント
新生活を失敗せず、スタートさせたいならこちらの「リノア西葛西」はいかがでしょうか。雨の日でも洗濯物を乾かせる浴室乾燥機の備え付けられた中古マンションです。専有面積70.37㎡の物件はいかがですか。当社がお客様の不動産購入をしっかりとサポート致します。経験豊富な当社スタッフがご案内するので安心してお任せください。ご連絡はメール又はお電話にて、お待ちしております。
ポイント
エレベーター 宅配ボックス バルコニー 3面バルコニー フローリング
担当者のコメント
来客が一目でわかるTVインターホン付き。防犯性に優れているオートロック付き物件で新生活を送りませんか。防犯カメラ付きの物件で安心です。地上10階建てで、住みやすい物件です。江戸川区にある西葛西周辺で不動産をお探しの方は、当社にお任せ下さい。住まい探しで失敗しないよう、当社がしっかりとサポートいたします。
基本情報
- 管理費
- 15,100円
- 修繕積立金
- 16,176円
- 修繕積立基金
- -
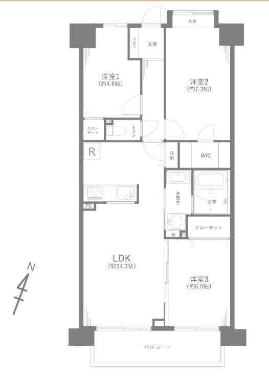
- 間取り / 詳細
- 3LDK
- 向き
- 東
- 専有面積
- 70.37㎡
- バルコニー面積
- 18.12㎡
- その他面積
- -
-
-
- 所在階 / 階建て
- 6階 / 10階建
- 建物構造
- 鉄骨鉄筋コンクリート
- 築年月
- 1989年9月(築36年)
- 種別
- 中古マンション
- 駐車場 /
月額料金 - 空無 -
- 土地権利
- 所有権
- 土地
(敷金 / 保証金) - - / -
- 国土法届出要否
- -
- 接道状況
- -
- 用途地域
- 第一種住居/近隣商業
- 地勢
- -
- 都市計画
- -
- 現況
- 空家
- 引渡し
- 相談
- 取引態様
- 仲介
- 棟総戸数
- 61戸
- 管理形態
- 管理会社に全部委託
- 管理会社 /
管理組合有無 - 大和ライフネクスト株式会社 / 有
- リフォーム
-
-
2026年4月
キッチン 浴室 トイレ 壁 床 全室 給排水管 給湯器
- その他条件
- ネットワーク関連月:1,001円
- 取引条件の
有効期限 - 2026年03月09日
設備条件
- 設備条件
-
- ペット相談 / リノベーション済 / 眺望良好 / フローリング / バルコニー / エレベーター / 3面バルコニー / 照明器具付き / 駐輪場 / バイク置場あり / 外観タイル張り / システムキッチン / カウンターキッチン / バス・トイレ別 / 追焚機能浴室 / 浴室乾燥機 / 温水洗浄便座 / 洗髪洗面化粧台 / CS / BS / インターネット対応 / オートロック / TVモニタ付インターホン / 宅配ボックス / 防犯カメラ / 角部屋
- 設備(その他)
-
-
-
その他
- 物件番号
- 101280295
- 管理コード
- -
- 建築確認番号
- -
- 情報更新日
- 2026年03月02日
- 次回更新予定日
- 2026年03月09日
- 備考
- 価格5,690万円ながら充実した設備のこちらの物件は、多くの方におすすめです。顔が見える安心のTVインターホン付きです。宅配ボックスに荷物を預けられるので、配達時間に家で直接対応する必要はなく外出中や仕事中に時間を気にする必要はありません。西葛西近郊なら、通勤や通学で困ることはありません。そんな利便性の高い暮らしをお求めなら、地域に詳しい当社にお任せ下さい。
取扱会社
- 店舗名
- ヴィックスリアルエステート 錦糸町店
- 運営会社
- 所在地
-
〒130-0013
東京都墨田区錦糸3丁目2-1 アルカイースト 2階
- アクセス
-
総武線 錦糸町駅 徒歩1分
半蔵門線 錦糸町駅 徒歩1分
- 電話番号
- 0120-633-805
- メールアドレス
- kinshicho@vixreal.co.jp
- 営業時間
- 10:00~19:00
- 定休日
- 水曜日(1~3月は定休日なし)
支払いシミュレーション
- 月々の支払額
- 円
- 購入希望物件価格
-
万円
- 頭金
-
万円
- 金利
-
%
- 返済額(ボーナス1回分)
-
万円
- 返済期間
-
年
※ボーナスは自動で年2回分で計算されます。
近隣の物件
リノア西葛西
5,690万円
15,100円
3LDK(70.37㎡)
お気軽にお問い合わせください
ヴィックスリアルエステート 錦糸町店
0120-633-805
10:00~19:00
(休:水曜日(1~3月は定休日なし))



